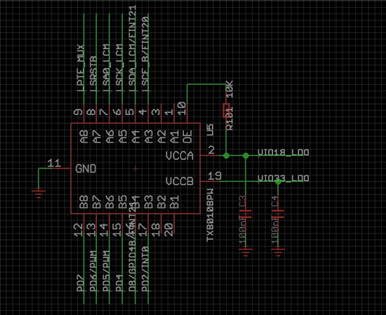
电路为上图
现在的问题是: 系统掉电时间较长时, 通过txb0108可以无法正常控制uln2003. 而掉电时间较短, 便可以正常控制.
很奇怪.
This thread has been locked.
If you have a related question, please click the "Ask a related question" button in the top right corner. The newly created question will be automatically linked to this question.
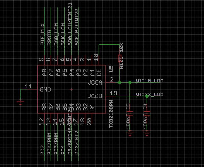
电路为上图
现在的问题是: 系统掉电时间较长时, 通过txb0108可以无法正常控制uln2003. 而掉电时间较短, 便可以正常控制.
很奇怪.
你指的VCCB掉电?TXB0108有Ioff特性,Ioff------This device is fully specified for partial-power-down applications using Ioff. The Ioff circuitry disables the outputs,preventing damaging current backflow through the device when it is powered down.那么你指的掉电时间短仍能正常工作,这个时间大概为多少?
控制电路OE是参考VCCA的,如果有条件的话建议测试同时上电,或者VCCA先于VCCB上电? 另外,要检查下DSP的输出电流是否大于2mA,否则TXB0108驱动不起来的。
这个列表是列出的器件能够输出的最大值,我们一般在使用器件的时候,功能性测试结果需要参考“RECOMMENDED OPERATING CONDITIONS”,TXBxx系列的产品输出驱动能力很小,一般也就在20uA左右,datasheet Page5中也有给出。所以如果你需要输出10mA的,TXBxx不适合。
那如果需要输出10mA驱动能力的话,可以考虑带方向控制位的SN74LVC8T245,也能实现1.8V到3.3V的双向电平转换,当3.3V的时候,输出电流能达到24mA。
带方向控制的器件 不适合我的应用。。。有没有输出能力大一点的,类似TXB0108这样的产品呢?
TXS0108会比 TXB0108的输出电流大多少?
TXS0108的输出驱动能力也很弱,也在uA级,如果不适合使用带方向控制的电平转换器件的话,那么可以考虑在TXB0108后面再加一个缓冲器/驱动器来提高驱动能力。