This thread has been locked.

If you have a related question, please click the "Ask a related question" button in the top right corner. The newly created question will be automatically linked to this question.

[参考译文] LMK0.3328万:IDT853S111B时钟缓冲器的AC-LVPECL输出电压摆幅问题

Guru**** 2409390 points


请注意,本文内容源自机器翻译,可能存在语法或其它翻译错误,仅供参考。如需获取准确内容,请参阅链接中的英语原文或自行翻译。

https://e2e.ti.com/support/clock-timing-group/clock-and-timing/f/clock-timing-forum/637039/lmk03328-the-ac-lvpecl-output-voltage-swing-issue-with-idt853s111b-clock-buffer

部件号:LMK0.3328万

大家好,

  我的客户在将LMK0.3328万的LVPECL输出与IDT853S111B时钟缓冲器连接时遇到问题。

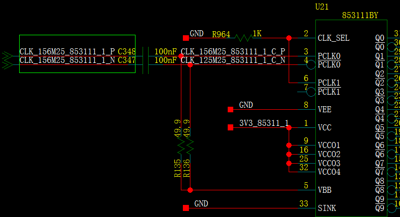
 LMK0.3328万和IDT853S111B之间的连接如下图所示。

在时钟缓冲器输入处测量的单端时钟电压如下图所示,振幅仅为260mV,大大低于LMK0.3328万 AC-LVPECL输出VOD的最小值。

客户在断开LMK0.3328万时钟输出处的交流耦合电容器时获得670mV振幅(单端)。

将LMK0.3328万与IDT853S111B连接时,您能否帮助检查为什么振幅如此低?    

  

此致,

尼克·戴

  • 请注意,本文内容源自机器翻译,可能存在语法或其它翻译错误,仅供参考。如需获取准确内容,请参阅链接中的英语原文或自行翻译。

    它们是否在驾驶员侧具有串联或并联端接?  如果是这样,则应缩短R系列或拆下驾驶员侧的分流器R。  

    艾伦

  • 请注意,本文内容源自机器翻译,可能存在语法或其它翻译错误,仅供参考。如需获取准确内容,请参阅链接中的英语原文或自行翻译。
    已在离线时回复。