This thread has been locked.

If you have a related question, please click the "Ask a related question" button in the top right corner. The newly created question will be automatically linked to this question.

[参考译文] ADS1198:AD1198中负极通道的假导联检测持续,严重问题

Guru**** 2387060 points
Other Parts Discussed in Thread: ADS1198
请注意,本文内容源自机器翻译,可能存在语法或其它翻译错误,仅供参考。如需获取准确内容,请参阅链接中的英语原文或自行翻译。

https://e2e.ti.com/support/data-converters-group/data-converters/f/data-converters-forum/578037/ads1198-false-leadoff-detection-for-negative-channels-in-ad1198-continuesly-critical-issue

部件号:ADS1198

尊敬的各位:

     我在使用ADS198假导联检测时遇到问题,即使所有导联都连接到电极或模拟器,设备也会检测到负极通道的导联脱落,LoFF_STAT_N也会不断变化。 请提供您的信息以尽早解决此问题。

      以下是从ADS1198中读取的负信道的错误值。

地址 注册 从AD1198读取的值 说明
13小时 LoFF_statn 0x0D,
0x1D,
0xDF,
0x1f,
0x9F
即使所有导联都连接到电极或模拟器,这些值也会持续变化。 这是一个严重的问题。  

LEAD-0ff检测寄存器的设置如下所示。

地址 注册 已设置值 说明
4小时   LoFF 0xE3 导联脱落比较器阈值:正极侧70 % ,
                                                                负极侧30 %
导联脱落检测模式:电流源模式导联脱落
导联脱落电流幅度:4 nA
导联脱落频率:打开直流导联脱落检测
17小时 CONFIIG4. 0x02 连续转换模式,
导联脱落比较器已启用
0Fh LoFF_SENSP 0xFF 选择所有正通道进行导联偏移检测
10小时 LoFF_SENSN 0xFF 选择所有负极通道进行导联偏移检测

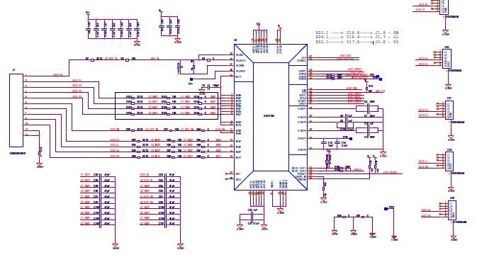
请浏览以下示意图,并提供您的输入信息。

此致,

Bhairu

  • 请注意,本文内容源自机器翻译,可能存在语法或其它翻译错误,仅供参考。如需获取准确内容,请参阅链接中的英语原文或自行翻译。
    您好Bhairu,

    从原理图中可以看到负输入全部连接到WCT输出。 这是真的吗? 图像像素化。

    如果是这种情况,这些输入不能"断开",因此比较器可能在引脚处的电压降至AVDD 30 % 以下时触发。

    在任何情况下,您都应该禁用直接连接到WCT放大器的任何输入引脚的导联脱落检测,因为这不会提供有用的信息。

    Brian
  • 请注意,本文内容源自机器翻译,可能存在语法或其它翻译错误,仅供参考。如需获取准确内容,请参阅链接中的英语原文或自行翻译。

    尊敬的Brian:

     ADS1198输入通道的详细信息如下所示。

    ADS1198输入/输出通道 潜在客户
     已连接
    IN1P V6
    IN2P 拉丁美洲
    IN3P LL.
    IN4P 第2版
    IN5P V3
    IN6P v4
    IN7P V5
    IN8P V1
       
    IN1N WCT
    IN2N 右心房
    IN3N 右心房
    IN4N WCT
    IN5N
    IN6N
    IN7N
    IN8N

     下面是ADS1198原理图

    e2e.ti.com/.../BW_5F00_AD1198.pdf

    此致,

    Bhairu

  • 请注意,本文内容源自机器翻译,可能存在语法或其它翻译错误,仅供参考。如需获取准确内容,请参阅链接中的英语原文或自行翻译。

    尊敬的Brian:

         RA导线连接到IN2N和IN3N (通道2和3的负极输入)。 请提供有关此问题的原因的信息。

    此致,

    Bhairu

  • 请注意,本文内容源自机器翻译,可能存在语法或其它翻译错误,仅供参考。如需获取准确内容,请参阅链接中的英语原文或自行翻译。
    嘿,Bhairu,

    发生这种情况时,RL电极是否连接到模拟机/患者? 如果不是,输入会"浮动",这可能会导致导联脱落检测出现异常行为。

    如果已连接,则可能尝试使用LoFF寄存器中的COMP_TH[2:0]位降低检测阈值。

    Brian Pisani
  • 请注意,本文内容源自机器翻译,可能存在语法或其它翻译错误,仅供参考。如需获取准确内容,请参阅链接中的英语原文或自行翻译。

    尊敬的Brian:

     以下是您所提问题的详细信息。

        发生这种情况时,RL电极是否连接到模拟机/患者?   -

              我们仅在 RL电极连接到患者时才看到此问题。 我将尝试按照您的建议降低检测阈值。  

    今天,我分析了负信道导联脱落状态 LoFF_statn,列表如下。

      负信道的LoFF状态(LoFF_statn)  
      负信道LoFF状态
      WCT WCT WCT WCT WCT 右心房 右心房 WCT
    LoFF_statn
    值已读
    IN8N_OFF   IN7N_OFF   IN6N_OFF   IN5N_OFF  IN4N_OFF   IN3N_OFF   IN2N_OFF   IN1N_OFF
    0x0D 0 0 0 0 1. 1. 0 1.
    0x1d 0 0 0 1. 1. 1. 0 1.
    0xDF 1. 1. 0 1. 1. 1. 1. 1.
    0x1f 0 0 0 1. 1. 1. 1. 1.
    0x9F 1. 0 0 1. 1. 1. 1. 1.
    0xFF 1. 1. 1. 1. 1. 1. 1. 1.
    0x0F 0 0 0 0 1. 1. 1. 1.
    0x08 0 0 0 0 1. 0 0 0

       如果您在第1行和第2行看到, IN3N比较器检测到导联脱落,而 IN2N比较器未检测到导联脱落,即使两个比较器的输入都连接到RA导联。 我想知道这怎么会发生,我不知道为什么两个比较器都用相同的输入显示两个不同的结果? 请尽快提供您对此的意见。

          患者佩戴设备12小时后出现上述问题。 重新启动设备后不久,仍然发现问题。

    谢谢,此致,

    Bhairu  

  • 请注意,本文内容源自机器翻译,可能存在语法或其它翻译错误,仅供参考。如需获取准确内容,请参阅链接中的英语原文或自行翻译。
    嘿,Bhairu,

    比较器阈值精确度在数据表第4页上列为+/-30mV,因此通道之间的阈值可能略有不同。 除了降低阈值电压之外,使此功能更有效的一种方法是增加导联断开电流。 目前的4 NA真的很小。 有大量泄漏路径可能会导致可能影响电路功能的非理想性。 较大的电流会通过非理想行为导致其标称电压泄漏的百分比更小。

    Brian
  • 请注意,本文内容源自机器翻译,可能存在语法或其它翻译错误,仅供参考。如需获取准确内容,请参阅链接中的英语原文或自行翻译。

    尊敬的Brian:

         正如您建议的那样,导联脱落比较器阈值从70 % (+ve通道),30 %(-ve通道)更改为95 % (+ve通道),05 %(-ve通道),方法是设置COMP_TH[2:0]:=000 (即 LoFF(0x04)=0x03 ),通过这些设置,已检测到除RLD之外的所有正负通道的导联脱落。 明天,如果需要,我将尝试增加导联断开电流。

          我已经浏览了数据表,并做了以下事情以启用RLD LoFF检测。

    1. RLD_LoFF_SENS已启用。通过设置 CONFIIG3 (03H)= 0xCE。  

                当出现这些变化时,只要有导联脱落,它就会显示 所有正极通道的导联脱落,负极通道的CH2和CH3 (CH2N和CH3N)。 我想读取  CONFIG3寄存器的RLD_STAT位的状态以确保RLD导联脱落状态。

    我正在使用读取数据连续命令在  数据就绪中断时进行数据检索。 请提供更多详细信息,以便在每次检索每个样本的数据后读取CONFIIG3寄存器值。 请共享示例代码以检测RLD导联脱落。

    请澄清以下事项。

    • 必须为RLD驱动内部放大器断电以进行RLD检测,以及如有必要,如何为RLD驱动内部放大器断电。
    • 首选哪种导联脱落检测模式。  电流源模式导线断开(默认)或 上拉/下拉电阻器模式导线断开。
    • 哪种方法更适合交流导联7直流导联。

    谢谢,此致,

    Bhairu

  • 请注意,本文内容源自机器翻译,可能存在语法或其它翻译错误,仅供参考。如需获取准确内容,请参阅链接中的英语原文或自行翻译。
    您好Bhairu,

    您正确地注意到,如数据表第57页所述,在正常操作期间无法使用RLD导联脱落功能。 要确定RL电极的导联脱落状态,您必须通过清除CONFIG3寄存器中的PD_RLD位来关闭RLD,然后使用RREG命令回读CONFIIG3寄存器。

    我们没有任何代码显示这一点,但也许您可以开发一个系统,如果在患者身上检测到多个导联脱落,您还可以使用上述步骤检查RL的状态。

    直流引线是两种检测方法中较好的一种,因为它提供了检测指示器。 交流电导联脱落要求您开发自己的算法,以根据从设备收集的数据确定导联脱落。

    Brian
  • 请注意,本文内容源自机器翻译,可能存在语法或其它翻译错误,仅供参考。如需获取准确内容,请参阅链接中的英语原文或自行翻译。

    尊敬的Brian:

          感谢您的快速回复并消除我的疑虑。 我已经完成了快速入门指南部分的导联断开小节中提供的打开直流导联的示例程序,其中直流激励信号被选为上拉/下拉电阻器。 我了解与10MΩ Ω 上拉/下拉电阻相比,电流源/汇提供更大的输入阻抗。  

    请澄清以下事项。

    • 在电流源/汇 电阻或10MΩ Ω 上拉/下拉电阻器中,首选哪种直流激励。
    • 对于当前导联断开模式,通过增加电流幅度对ECG信号是否有任何影响?

    谢谢,此致,

    Bhairu

  • 请注意,本文内容源自机器翻译,可能存在语法或其它翻译错误,仅供参考。如需获取准确内容,请参阅链接中的英语原文或自行翻译。
    Bhairu

    由于输入阻抗较大,电流源更受青睐。

    唯一会改变的是,电流乘以前端电阻器会引入直流偏移,但这不会超过几毫伏。 在心电图应用中,偏移并不罕见。

    Brian
  • 请注意,本文内容源自机器翻译,可能存在语法或其它翻译错误,仅供参考。如需获取准确内容,请参阅链接中的英语原文或自行翻译。

    尊敬的 Brian:

         感谢您的意见和建议,

    我已经做了以下更改来检测RLD导联脱落

    1)启用RLD检测。

    2)导联断开电流设置为16nA。

    3)选择了电流感应模式导联脱落。

    即CONFIIG3 REG(03H)= 0xCE

       LoFF reg (04h)= 0x0F

         运行时,每隔1秒按照 以下步骤读取config3的RLD_STAT状态。

    •   停止_读取_数据_连续
    • Config3寄存器的PD_RLD位设置 为低(CONFIIG3 REG(03H)= 0xCA),
    •  阅读 config3的RLD_STAT。
    •  Config3寄存器的PD_RLD位设置为高 (CONFIIG3 REG(03H)= 0xCE),
    • Start_Read_Data_Continuous;

     当  RLD导联与身体断开时,可观察到RLD导联脱落检测的以下结果。

    • 当连接  到模拟器时,通过config3的RLD_STAT正确检测到RLD导联脱落。
    • 当设备在人体上受虫时,未检测到导联脱落。
    •  

           当我们找到根本原因时,我们发现,只要身体皮肤或手接触到连接 到ADS1198 AVSS和DGND的连接器屏蔽/设备外壳,就不会检测到导联脱落,即使未连接RLD,ECG也会被探测到。  

         我已经浏览了数据表,但没有找到解决此问题的任何解决方案。请澄清以下内容

    • 人体如何在没有RLD导线的情况下获得螺旋桨偏置,只需触摸皮肤 即可连接 到连接 到AVSS的连接器屏蔽/设备外壳。
    • RLD和AVSS之间的关系。
    • 如何检测上述问题的RLD导联脱落
    • 接触到 连接 到AVSS的接头屏蔽/设备外壳时,不能检测到RLD导联。  

    谢谢,此致,

    Bhairu

  • 请注意,本文内容源自机器翻译,可能存在语法或其它翻译错误,仅供参考。如需获取准确内容,请参阅链接中的英语原文或自行翻译。

    尊敬的Brian:

         感谢您的意见。

    我使用RLD_STAT位正确读取了RLD导联状态,只要模拟器有导联脱落,但当设备在人体上受到虫子的作用时,我没有检测到RLD LED_OFF。

    造成这种情况的根本原因是人体皮肤接触到连接到ADS1198 AVSS和DGND的连接器屏蔽/设备外壳(设备主体)。

    请澄清以下事项。

    • RLD,AVSS和DGND如何相关。
    • 当 人体皮肤接触连接器屏蔽/设备外壳时,即使RLD导线与人体断开(ECG是Proper),人体如何获得Proper偏倚。
    • 请建议解决上述问题。

    谢谢,此致,

    Bhairu

  • 请注意,本文内容源自机器翻译,可能存在语法或其它翻译错误,仅供参考。如需获取准确内容,请参阅链接中的英语原文或自行翻译。

    您好Bhairu,

    我相信我知道这里发生了什么。 如果患者接触地面,您可以假定所有ADC输入的电压均为0V。 然而,PGA的输出限制为比AVSS高200 mV。 假设PGA的输出电压为200 mV。

    现在请参阅数据表中的图50。 禁用RLD放大器,因此您可以假定放大器的输出为高阻抗。 输出也与患者断开,因此唯一的位置电流流流是通过16 nA导联断开电流源流至AVSS。

    假设这些RLDxP/N开关中的一些关闭,RLDINV引脚的电压也将为200 mV。 16 nA导联断开电流流经原理图中的R5。 RLDOUT (比较器观察电压的位置)处的电压为200 mV -(16 NA * R5)= 185 mV。

    您已将COMP_TH[2:0]位设置为5 % ,因此比较器仅在RLDOUT电压低于0.05 * 3 V = 150 mV时触发。 由于电压为185 mV,因此不会触发。

    顺便说一下,220千欧电阻器上也有一个压降,但与R5相比,它很小,所以我忽略了它。

    要解决这个问题,我想你有两个选择。

    1. 清除所有RLDxP/N位,这样电流将无法移动,并且RLDOUT处的电压将始终保持低水平,无论发生什么情况。
    2. 将比较器阈值移至AT leas 7.5 %。 这将允许比较器在225 mV时触发。

    此致,

    Brian Pisani

  • 请注意,本文内容源自机器翻译,可能存在语法或其它翻译错误,仅供参考。如需获取准确内容,请参阅链接中的英语原文或自行翻译。

    尊敬的Brian:

         感谢您的输入,我已经按照您的建议测试了这两个选项,通过读取 RLD_STAT位来检测RLD LED_OFF。

    备选案文1. 清除所有RLDxP/N位,这样电流将无法移动,并且RLDOUT处的电压将始终保持低水平,无论发生什么情况。

           RLD_STAT位总是读为'0'。

    备选案文2.  将比较器阈值移至AT leas 7.5 %。 这将允许比较器在225 mV时触发。

    •          使用 比较器阈值7.5 % 进行测试 ,结果如下所示。

         - 如果患者接触系统接地,则RLD_STAT位读为'0'。

         - 如果患者未接触地面,则RDL_STAT位将按预期读取为'1'。

    •     如果比较器阈值设置为10 %  , 则检测到RA假导联。


    在a/c RLDIN/RLDOUT测量电压,结果如下所示。

    案例 电压a/c RLDIN/RLDOUT
    单位:伏特
    所有导联均连接至主体 1.482
    仅RL导联被断开 0
    仅RL导联断开&
    患者接触系统GND
    2.96

      当病人接触系统接地时,我更有兴趣检测RLD导联,因为在我们的情况下,设备的机械外壳与接地相连,始终接触病人的身体。

    请澄清以下事项。

    • 当 GND接触患者身体时,为什么RLDIN/RLDOUT的电压从0V变为2.96V?

       请尽早回复。

    谢谢,此致,

    Bhairu

  • 请注意,本文内容源自机器翻译,可能存在语法或其它翻译错误,仅供参考。如需获取准确内容,请参阅链接中的英语原文或自行翻译。

    Bhairu

    请您说明在哪些情况下可以看到这些结果:

    [报价用户="Bhairu Patil1"]

    在a/c RLDIN/RLDOUT测量电压,结果如下所示。

    案例 电压a/c RLDIN/RLDOUT
    单位:伏特
    所有导联均连接至主体 1.482
    仅RL导联被断开 0
    仅RL导联断开&
    患者接触系统GND
    2.96

    [/引述]

    它们是否对应于设置或清除RLDP/N位的时间? RLD放大器是否断电? 我认为RLDOUT会转至2.96 的唯一原因是在设置了一些RLDP/N位的情况下打开RLD放大器的电源。 在这种情况下,当输入等于接地时,反向增益将产生接近AVDD的电压。

    测试选项1时,您是否能够使用示波器探测RLD放大器的输出,以查看该节点处的电压? 对于下拉电流源和绝对没有连接到电压保持恒定的节点的情况,我觉得很奇怪。

    顺便说一句,如果您需要参考电路的测试工作原理,您可以将其视为数据表中图49和图50的组合。

    Brian

  • 请注意,本文内容源自机器翻译,可能存在语法或其它翻译错误,仅供参考。如需获取准确内容,请参阅链接中的英语原文或自行翻译。

    尊敬的Brian:

          感谢您的意见和建议。

    澄清:  在 以下情况下,前一个职位的结果相同。

    • Config3寄存器设置为0xCE; //启用RLD_LoFF_SENS
    • LoFF寄存器设置为0x0F; //比较器阈值95 - 05 %,16na导联脱落电流。 电流源模式, 直流导联检测
    • RLD_SENSP寄存器设置为0x02; //通道2正极(LA)
    • RLD_SENSN寄存器设置为0x02; //通道2负极(RA)

    在上述条件下,通过a/c RLDIN/RLDOUT测量电压 ,结果如下所示。

    案例 电压a/c RLDIN/RLDOUT (单位:伏特) 导联脱落检测
    所有导联均连接至主体 1.482
    仅RL导联被断开 0 是的
    仅RL导联断开,患者接触系统接地 2.96  

    选项1:读取RLD_STAT以在以下情况下检测RLD_LEAD,结果如下所示。

    • Config3寄存器设置为0xCE; //启用RLD_LoFF_SENS
    • LoFF寄存器设置为0x0F; //比较器阈值95 - 05 %,16na导联脱落电流。 电流源模式, 直流导联检测
    • RLD_SENSP寄存器设置为0x00;  
    • RLD_SENSN寄存器设置为0x00;  
    案例 电压a/c RLDIN/RLDOUT (单位:伏特) 导联脱落检测
    所有导联均连接至主体 1.482 不适用
    仅RL导联被断开 1.482  
    仅RL导联断开,患者接触系统接地 1.482  

                 要读取Config3寄存器的RLD_STAT位,请遵循以下步骤,总时间为360us,

    • 发送SDATAC命令                //Stop_Read_Data_Continuous
    • 将0xCA写入config3寄存器。        // RLD_buffer已关闭
    • 将0xCE写入config3寄存器。       //启用RLD缓冲区
    • 读取Config3寄存器的RLD_STAT位
    • 发送RDATAC命令               //Start_Read_Data_Continuous

    请尽快澄清以下事项。

    1. 为什么在选项1中的所有情况下,电压A/c RLDIN/RLDOUT引脚都是恒定的? 为什么RLD_STAT位在选项1中被读为0 'RDD引线状态。
    2. 读取RLD_STAT位后,从ADS1198获取稳定心电图数据需要多长时间?
    3. 当导联和患者接触系统接地时,如何正确读取RLD导联状态?

    谢谢,此致,

    Bhairu

    在a/c RLDIN/RLDOUT测量电压,结果如下所示。

    案例 电压a/c RLDIN/RLDOUT
    单位:伏特
    所有导联均连接至主体 1.482
    仅RL导联被断开 0
    仅RL导联断开&
    患者接触系统GND
    2.96
  • 请注意,本文内容源自机器翻译,可能存在语法或其它翻译错误,仅供参考。如需获取准确内容,请参阅链接中的英语原文或自行翻译。

    您好Bhairu,

    在您尝试检测RLD导联脱落的所有情况下,RLD放大器都已通电。 请记住,当RLD放大器通电时,RLD导联脱落将无法正常工作(请参阅数据表第57页)。

    在您的序列中,您似乎是在禁用RLD放大器,然后立即重新启用它,然后读取RLD_STAT位的状态。 是这样吗? 这将不起作用,因为当您读取导联脱落状态时,RLD放大器将打开。

    此外,在RLD放大器关闭后,您可能需要等待一段时间,然后电压才会足够低以触发导联脱落比较器,因为电路和电极中会有一些电容。 例如,如果电路在RLD输出处甚至具有2 pF的寄生电容,则16 nA电流源需要170 us才能使管网上的电压足够低,从而触发比较器。

    1. 读数为零,因为RLD放大器已打开。
    2. 您是否指的是启用RLD放大器后打开它所需的时间? 我认为我们没有这方面的任何数据。
    3. 请参阅我的上述评论。

    ADS1198 RLD导联断开电路不适合连续导联断开检测。 我的建议是在某些情况下只检查RL导联。 例如,如果多个其他电极指示导联脱落,或者您的R检测功能未能检测到正确的ECG波形。

    此致,

    Brian Pisani

  • 请注意,本文内容源自机器翻译,可能存在语法或其它翻译错误,仅供参考。如需获取准确内容,请参阅链接中的英语原文或自行翻译。

    尊敬的Brian:

    感谢您的意见。

             RLD导联断开且患者接触系统GND时的RLD检测问题

                   --通过将病人身体与系统GND相连接,此问题已在我们的设备中得到解决。

    将以下配置设置为检测RLD。

    • Config3寄存器设置为0xCE; //启用RLD_LoFF_SENS
    • LoFF寄存器设置为0x0F; //比较器阈值95 - 05 %,16na导联脱落电流。 电流源模式, 直流导联检测
    • RLD_SENSP寄存器设置为0x02; //通道2正极(LA)
    • RLD_SENSN寄存器设置为0x02; //通道2负极(RA)
    • 如果存在RLD导联脱落,则每1秒正确读取config3寄存器中的RLD_STAT。

    请 尽快澄清以下事项。

    ADS1198 RLD导联断开电路不适合连续导联断开检测。 我的建议是在某些情况下只检查RL导联。 例如,如果多个其他电极指示导联脱落,或者您的R检测功能未能检测到正确的ECG波形。

    •   每1秒读取一次config3寄存器的RLD_STAT位是否正常?

    谢谢,此致,

    Bhairu

  • 请注意,本文内容源自机器翻译,可能存在语法或其它翻译错误,仅供参考。如需获取准确内容,请参阅链接中的英语原文或自行翻译。
    您好Bhairu,

    问题不在于读取频率,而是与导联断开电路的稳定性有关。 我建议只在某些情况下读数的原因是,为了获得准确的导联脱落检测,必须关闭RLD放大器,等待一段时间,然后再读取该位。 这不是一个理想的需要经常执行的操作,因为它需要关闭RLD放大器的电源。 在正常操作过程中,您不需要关闭RLD,因为它可能会影响您的ECG测量。

    Brian
  • 请注意,本文内容源自机器翻译,可能存在语法或其它翻译错误,仅供参考。如需获取准确内容,请参阅链接中的英语原文或自行翻译。

    尊敬的Brian:

           非常感谢您的意见和持续支持。 根据您的建议,我们不会读取RLD_STAT位的状态。

    我们已经考虑了您建议的以下更改,以修复 虚假导联脱落检测。  

    • Config3寄存器设置为0xCC;  
    • LoFF寄存器设置为0x0F; //比较器阈值95 - 05 %,16na导联脱落电流。 电流源模式, 直流导联检测
    • RLD_SENSP寄存器设置为0x02; //通道2正极(LA)
    • RLD_SENSN寄存器设置为0x02; //通道2负极(RA)

    通过这些变化,我们观察到了以下结果。

    导联断开
    来自患者身体
    ADS渠道   LoFF_STATP LoFF_statn 导联脱落检测
    所有潜在客户 -- 0xFF 0x06  
    RL -- 0xFF 0x00  
    右心房   IN2N/IN3N 0x00 0x06 右心房  
    V6 IN1P 0x01 0x00 V6
    拉丁美洲 IN2P 0x02 0x00 拉丁美洲
    LL. IN3P 0x04 0x00 LL.
    第2版 IN4P 0x08 0x00 第2版
    V3 IN5P 0x10 0x00 V3
    v4 IN6P 0x20 0x00 v4
    V5 IN7P 0x40 0x00 V5
    V1 IN8P 0x80 0x00 V1

      如果我们看到上表,只要只有RL导联从病人身体上断开,我们就会从ADS1198接收到LoFF_STATP作为0xFF。

           对于RL导联检测,我们遵循以下方法。

    • 每当LoFF_STATP 被读取为 0xFF时,我们 就会解释RL已断开连接。并且我们不处理ECG信号。

    请尽快澄清以下事项。

    1. 以上解释RLD导联检测的方法是否有效?
    2. 是否有任何改进RLD导联脱落检测的建议?

    此致,

    Bhairu

  • 请注意,本文内容源自机器翻译,可能存在语法或其它翻译错误,仅供参考。如需获取准确内容,请参阅链接中的英语原文或自行翻译。
    您好Bhairu,

    1.这应该在大多数时间都有效。
    2.在这种情况下,如果只有RL关闭,则连接到RA的电流接收器可能会吸收其中一个正输入上的源,而该正输入处的电压可能会保持低到比较器不会触发。 在这种情况下,您将读取除一组之外的所有LOFFP位。 改进的一种方法是检查所有已设置8个LOFFP位中至少7个位的方案。 下面显示了逻辑:

    (LOFFP == 0xFF)||
    (LOFFP == 0xFE)||
    (LOFFP == 0xFD)||
    (LOFFP == 0xFB)||
    (LOFFP == 0xF7)||
    (LOFFP == 0xEF)||
    (LOFFP == 0xDF)||
    (LOFFP == 0xBF)||
    (LOFFP == 0x7F)

    此致,
    Brian