This thread has been locked.

If you have a related question, please click the "Ask a related question" button in the top right corner. The newly created question will be automatically linked to this question.

[参考译文] ADS1248:IDAC 关闭情况下的 A/D 数据线性度

Guru**** 2549960 points
Other Parts Discussed in Thread: ADS1248

请注意,本文内容源自机器翻译,可能存在语法或其它翻译错误,仅供参考。如需获取准确内容,请参阅链接中的英语原文或自行翻译。

https://e2e.ti.com/support/data-converters-group/data-converters/f/data-converters-forum/698072/ads1248-a-d-data-linearity-under-the-idac-off-situation

器件型号:ADS1248

您好!

让我向您询问以下有关 A/D 数据与 IDAC 连接之间关系的问题。

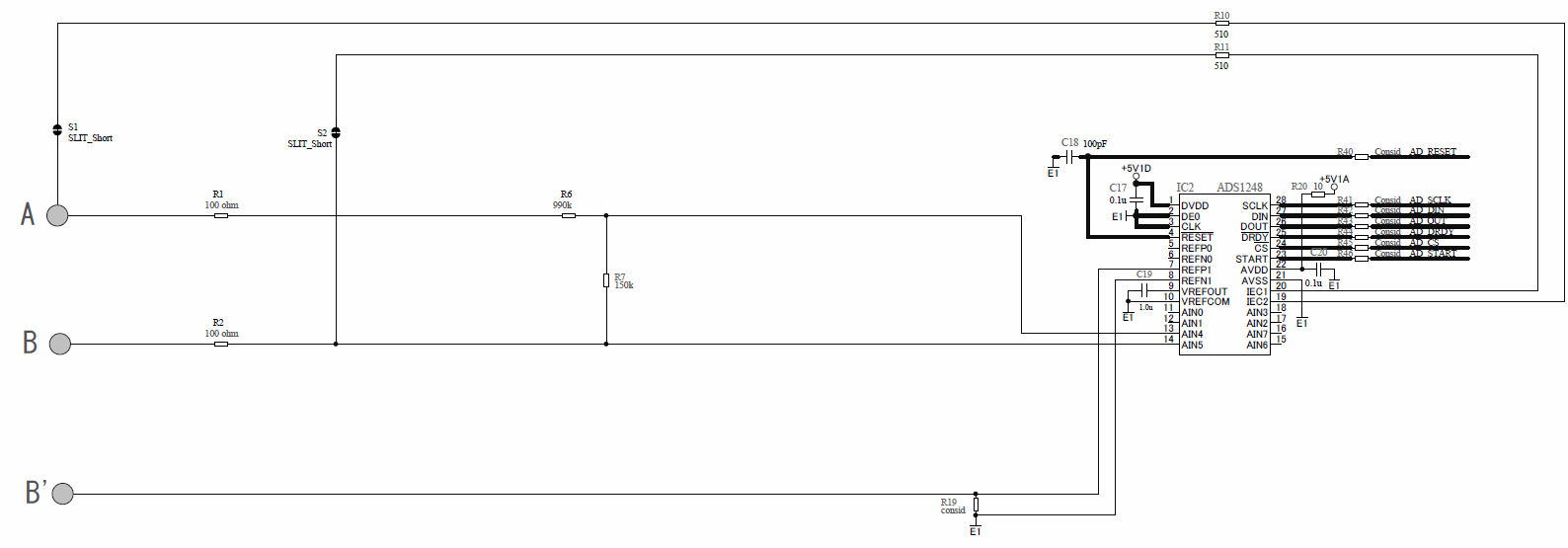
q)我 的客户使用 以下电路评估 ADS1248。

端子 A 和 B:电压输入--+/- 10V

端子 A、B 和 B':RTD 输入

 现在、客户发现了一个有关电压输入(A 和 B)情况下 A/D 转换数据的奇怪现象。

也就是说、当输入电压超过+/- 3.1V 时、A/D 的输出数据不会显示线性

然后、IDAC1的寄存器设置 为"11xx11xx"。 ( IDAC 处于"关闭"状态)

在同一情况下、如果移除 R10 (510ohm)和 R11 (510ohm)、A/D 输出数据显示正常。 (显示线性)

我假设这种现象似乎是通过  IDAC 的"PMOS"栅极/源极电压与漏极电压(输入 电压)之间的关系发生的...

但我并不清楚这种现象的根本原因。

您能 告诉我根本原因、 并告诉我如何修复这种现象吗?

感谢您的支持。

此致、

 

  • 请注意,本文内容源自机器翻译,可能存在语法或其它翻译错误,仅供参考。如需获取准确内容,请参阅链接中的英语原文或自行翻译。
    您好、Suzuki-San、

    引脚19和20上的 IDAC 输出具有与模拟输入相同的限制。 请参阅 ADS1248数据表第7页7.1节中的绝对最大额定值。 最大的问题是 ESD 结构打开。

    我不清楚为什么3.1V 会成为线性问题的起点、除非相对于 AGND 的输入电压高于预期。 对于+/-10V、我假设这高于和低于模拟接地。 也不清楚在 ADS1248的电源为单极时如何将+/-10V 用作器件的输入。 如果没有某种形式的模拟接地参考、输入电压可能会浮动到任何值。 因此、必须注意确保模拟输入不会超出绝对最大值。

    在消除线性问题方面、一种防止输入电压通过 IDAC 输出驱动回的方法是使用二极管阻止反向电流。 使用肖特基二极管将导通电压降限制在200mV 至300mV、此时 IDAC 处于正向偏置状态。 此外、二极管很可能会消除对510欧姆电阻器的需求。

    此致、
    Bob B
  • 请注意,本文内容源自机器翻译,可能存在语法或其它翻译错误,仅供参考。如需获取准确内容,请参阅链接中的英语原文或自行翻译。

    尊敬的 Bob-San:

    非常感谢您的回复!

    我明白了。

    我将要求客户再次检查输入电压。

    此致、

  • 请注意,本文内容源自机器翻译,可能存在语法或其它翻译错误,仅供参考。如需获取准确内容,请参阅链接中的英语原文或自行翻译。
    尊敬的 Bob-San:

    我要求客户检查 IECx 引脚的输入电压。
    因此、他们发现输入电压超出了规格...
    您的建议是正确的、我非常感谢您的支持!

    顺便说一下、
    客户对此问题的电路有问题。
    因为我有了电路原理图、我想请您检查一下、并为我提供解决问题的建议。
    那么、您会告诉我您的电子邮件、因为我可以给您发送电路吗?

    非常感谢您的支持。
    此致、
  • 请注意,本文内容源自机器翻译,可能存在语法或其它翻译错误,仅供参考。如需获取准确内容,请参阅链接中的英语原文或自行翻译。

    您好、Suzuki-San、

    您可以通过以下电子邮件地址与我联系:

    pa_deltasigma_apps@ti.com

    此致、

    Bob B

  • 请注意,本文内容源自机器翻译,可能存在语法或其它翻译错误,仅供参考。如需获取准确内容,请参阅链接中的英语原文或自行翻译。

    非常感谢、Bob-San!

    此致、